DOCUMENTS
Application Forms
| APPLICATION FORM | 14-10-25 | Application Form redacted Application Form - Without Personal Data |
Plans
| LOCATION PLAN | 14-10-25 | SUPERSEDED Location plan | ||
| LOCATION PLAN AMENDED | 11-11-25 | REVISED location plan | ||
| EXISTING FLOOR PLANS | 14-10-25 | 16 - A Existing Floor Plan | ||
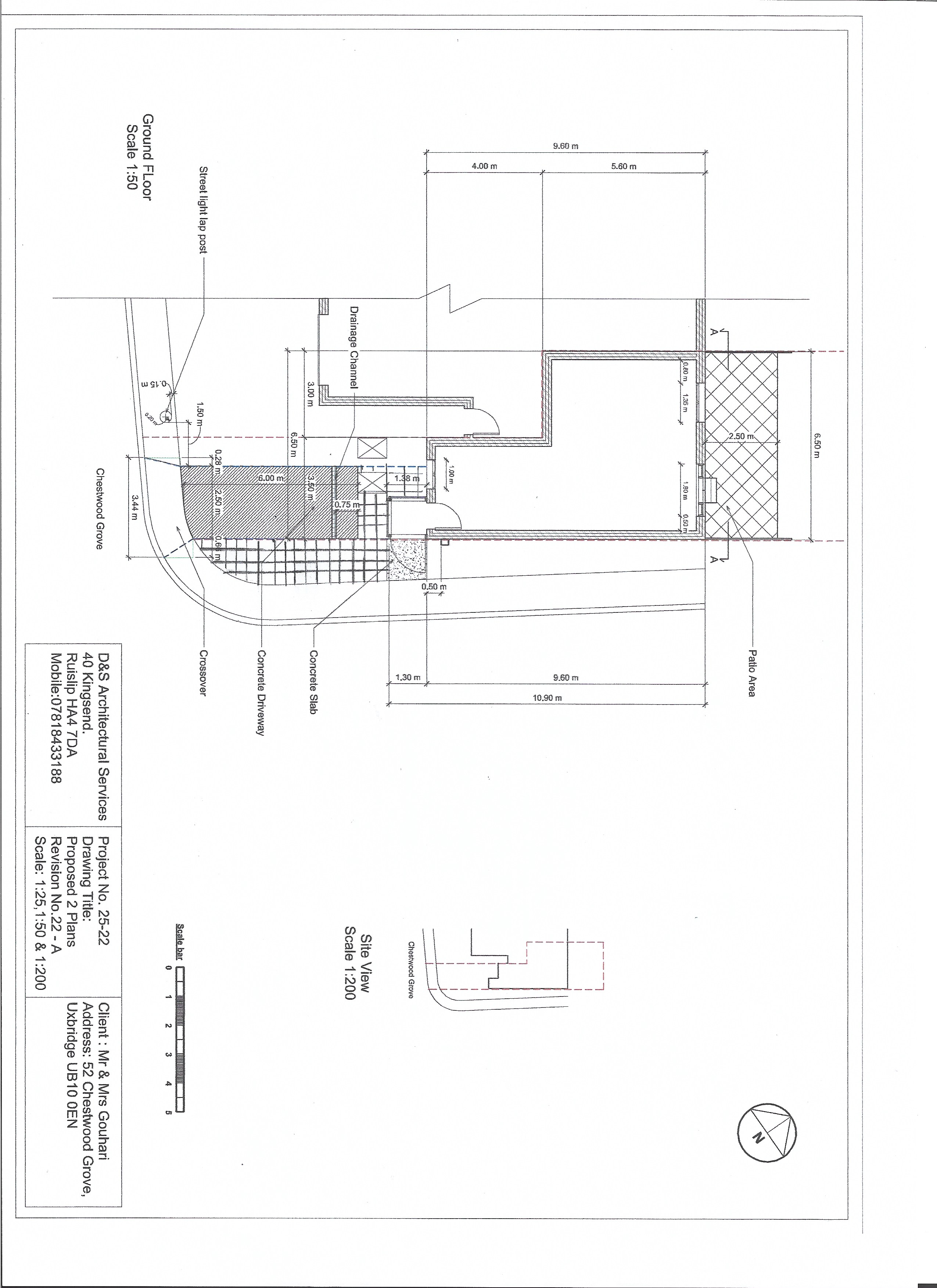
| PROPOSED FLOOR PLANS | 14-10-25 | SUPERSEDED Proposed FPs (incorrect format) | ||
| PROPOSED PLAN | 14-10-25 | 22 - A SUPERSEDED Proposed Elevation and Floor Plan | ||
| PROPOSED PLAN | 04-11-25 | SUPERSEDED Proposed 2A Revision Plans | ||
| PROPOSED PLAN AMENDED | 10-11-25 | 2B Revision Plans dated 8/11/2025 REVISED proposed drawing |
Supporting Documentation
| There are no documents for this section |
Decision Documentation
| DECISION NOTICE | 23-12-25 | |||
| OFFICERS REPORTS | 23-12-25 |
