DOCUMENTS
Application Forms
| APPLICATION FORM | 30-08-23 | Application Form - Without Personal Data |
Plans
| LOCATION PLAN | 30-08-23 | Location Plan (SUPERSEDED) | ||
| LOCATION PLAN | 20-09-23 | Location Plan | ||
| BLOCK PLAN | 20-09-23 | Block Plan | ||
| EXISTING PLAN | 30-08-23 | Existing Shed Site Plan, Roof Plan, Dimensions & Elevations (SUPERSEDED) | ||
| EXISTING PLAN | 20-09-23 | Existing Shed Site Plan, Roof Plan, Front & Side Elevations | ||
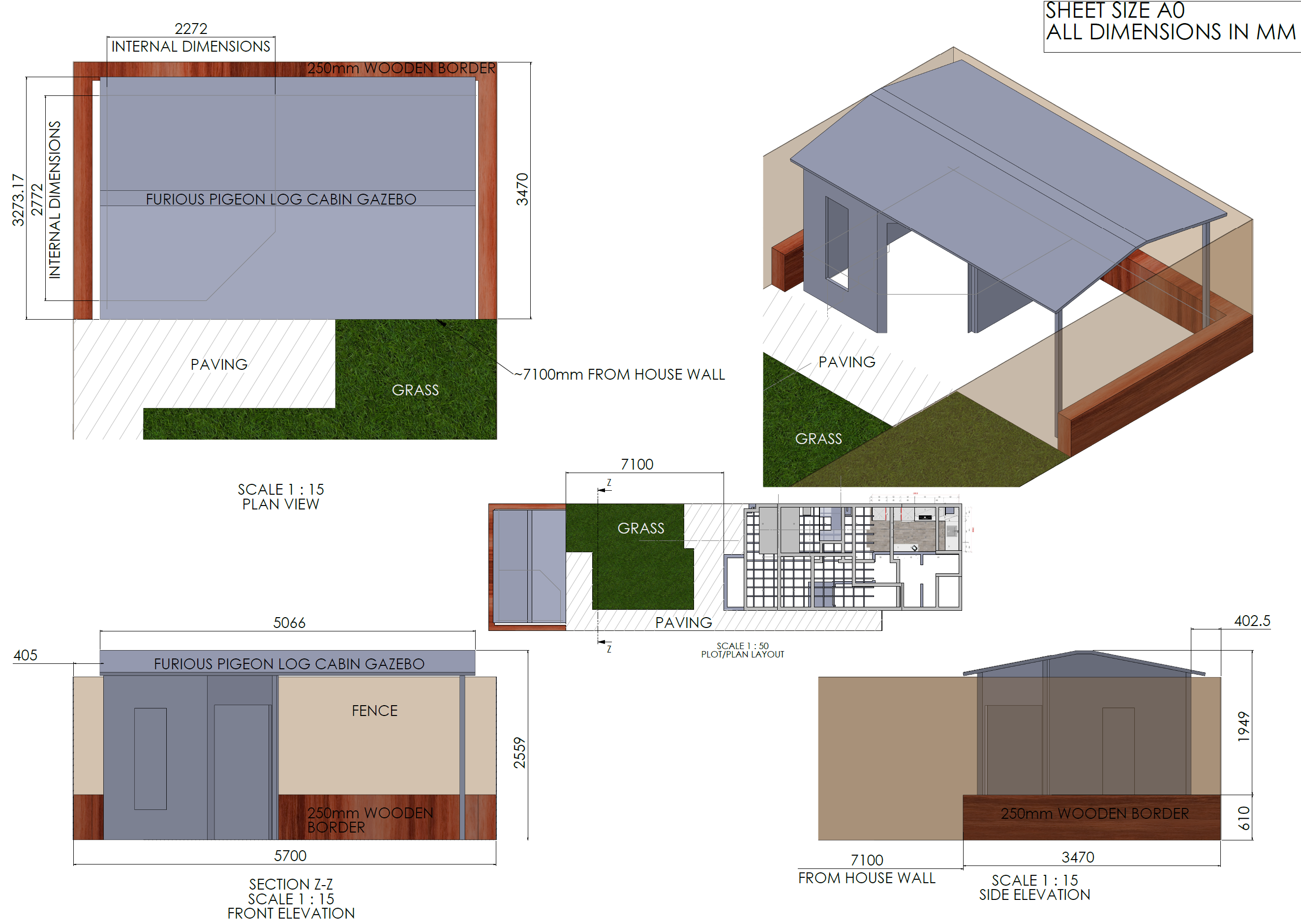
| PROPOSED PLAN | 30-08-23 | Proposed Outbuilding Site Plan, Roof Plan, Dimensions & Elevations (SUPERSEDED) | ||
| PROPOSED PLAN | 20-09-23 | Proposed Outbuilding Site Plan, Roof Plan, Front & Side Elevations |
Supporting Documentation
| ADVERTISEMENT NOTICE | 12-10-23 | Advertised in Gazette 11.10.23 | ||
| SITE NOTICE | 04-10-23 | Displayed 03/10/2023 | ||
| SITE NOTICE | 04-10-23 | Displayed 03/10/2023 |
Decision Documentation
| DECISION NOTICE | 14-11-23 | |||
| OFFICERS REPORTS | 14-11-23 |
