DOCUMENTS
Application Forms
| APPLICATION FORM | 25-10-23 | ApplicationFormRedacted Application Form - Without Personal Data | ||
| APPLICATION FORM | 26-01-24 | Application Form - Without Personal Data |
Plans
| PHOTOGRAPHS (Supporting info) | 26-01-24 | Sketch Plan Sketch plan | ||
| PLAN | 25-10-23 | Sketch Plan Sketch plan |
Supporting Documentation
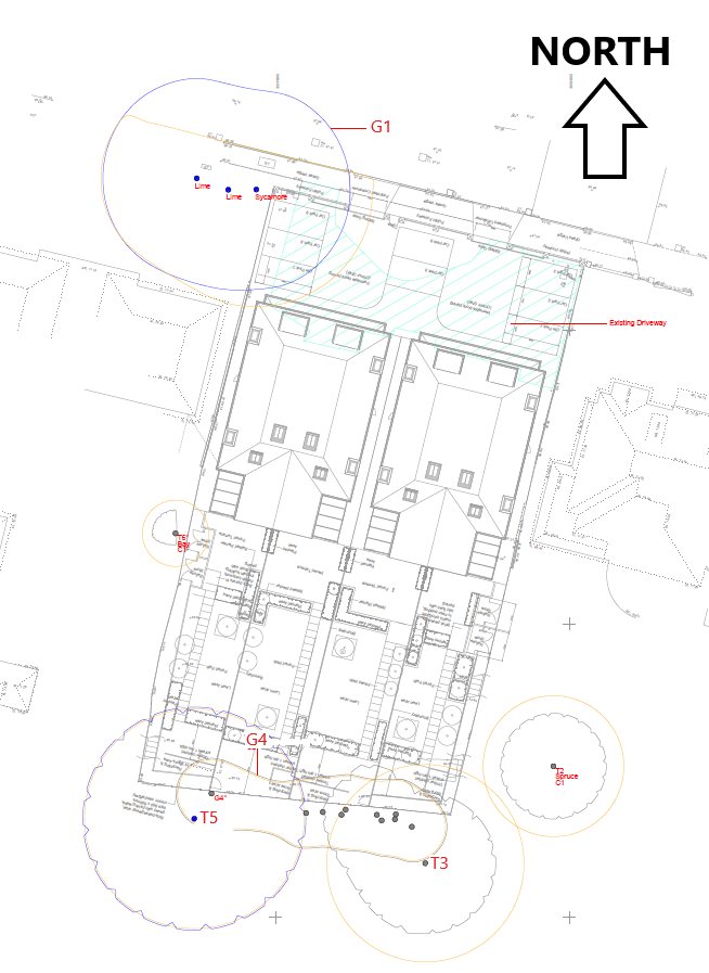
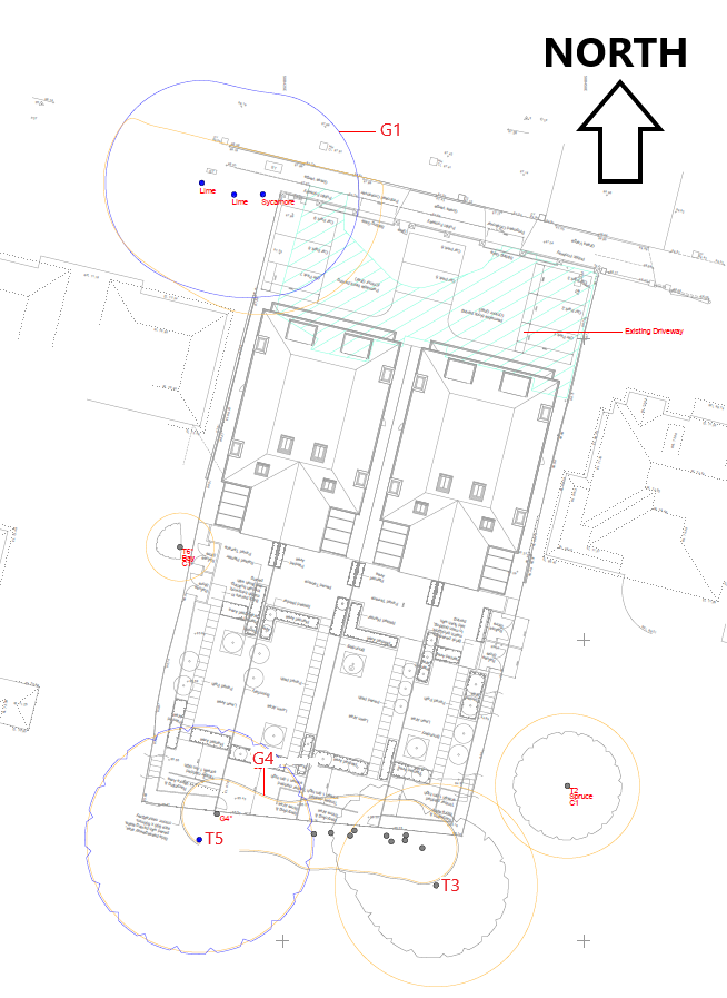
| SUPPORTING INFORMATION | 25-10-23 | Tree survey Tree survey |
Decision Documentation
| DECISION NOTICE | 14-12-23 | |||
| OFFICERS REPORTS | 14-12-23 |
