DOCUMENTS
Application Forms
| APPLICATION FORM | 24-09-24 | Application Form - Without Personal Data |
Plans
| LOCATION PLAN | 24-09-24 | The location plan | ||
| BLOCK PLAN | 27-09-24 | Existing and Proposed Block Plan | ||
| PROPOSED PLAN | 24-09-24 | Outbuilding proposal.png | ||
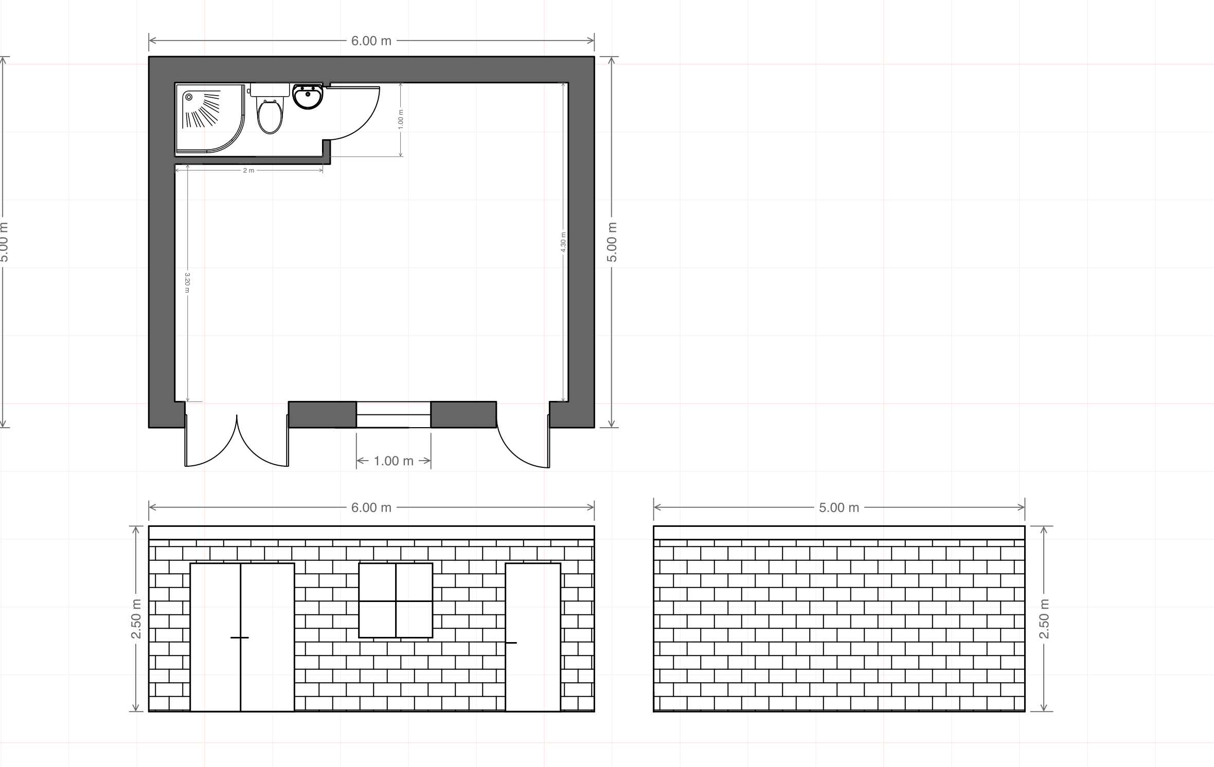
| PROPOSED PLAN AMENDED | 27-09-24 | Amended Proposed Floor Plans and Elevations |
Supporting Documentation
| There are no documents for this section |
Decision Documentation
| DECISION NOTICE | 25-11-24 | |||
| OFFICERS REPORTS | 25-11-24 |
