DOCUMENTS
Application Forms
| APPLICATION FORM | 13-02-24 | Application Form - Without Personal Data |
Plans
| LOCATION PLAN | 13-02-24 | PP-12690480V1 Location Plan | ||
| PHOTOGRAPHS (Supporting info) | 13-02-24 | Photograph Photograph | ||
| SITE LAYOUT - PROPOSED | 29-05-24 | TQRQM24115103412231 Site Layout - Proposed | ||
| PROPOSED FLOOR PLANS | 13-02-24 | Proposed Floor Plans SUPERSEDED | ||
| PROPOSED PLAN | 04-03-24 | MB/4127/2 Rev A Proposed Floor Plans - SUPERSEDED | ||
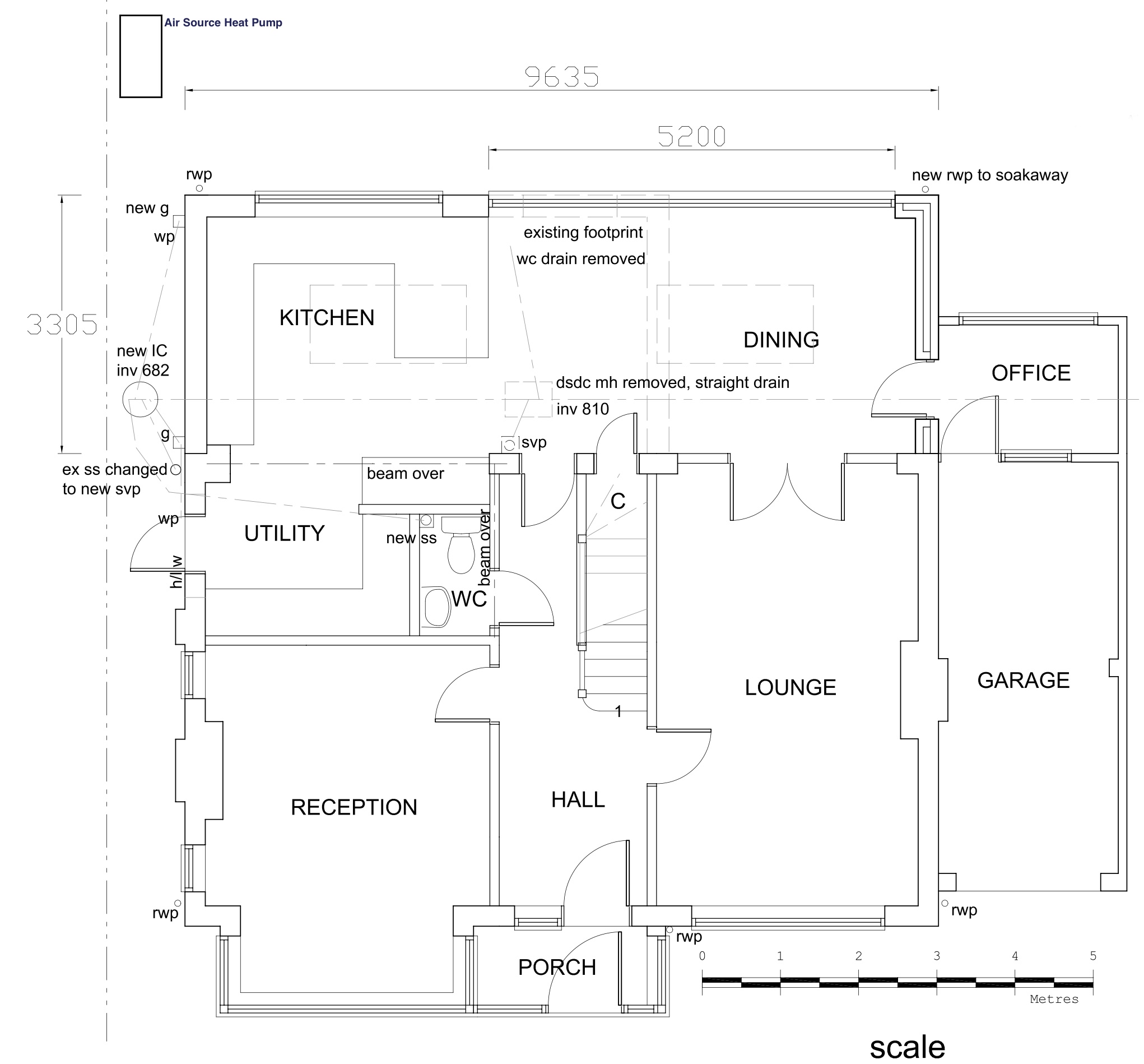
| PROPOSED PLAN AMENDED | 02-05-24 | 20240424-28 Croft Gardens-ASHP Plan-Ver1.0 (Dated Proposed Floor Plans - REVISED |
Supporting Documentation
| SUPPORTING INFORMATION | 02-05-24 | Valliant aroTHERM plusVWL 105/6 A 230V S2 VWL 125/ Air Source Heat Pump Product Specification | ||
| SUPPORTING INFORMATION | 29-05-24 | Photograph of EV Charging Point existing | ||
| ADDITIONAL DOCUMENTS | 13-02-24 | Air Source Heat Pump Elevation | ||
| ADDITIONAL DOCUMENTS | 29-02-24 | Air Source Heat Pump Plan |
Decision Documentation
| DECISION NOTICE | 29-05-24 | |||
| OFFICERS REPORTS | 29-05-24 |
